尊敬的各位老师、同学:
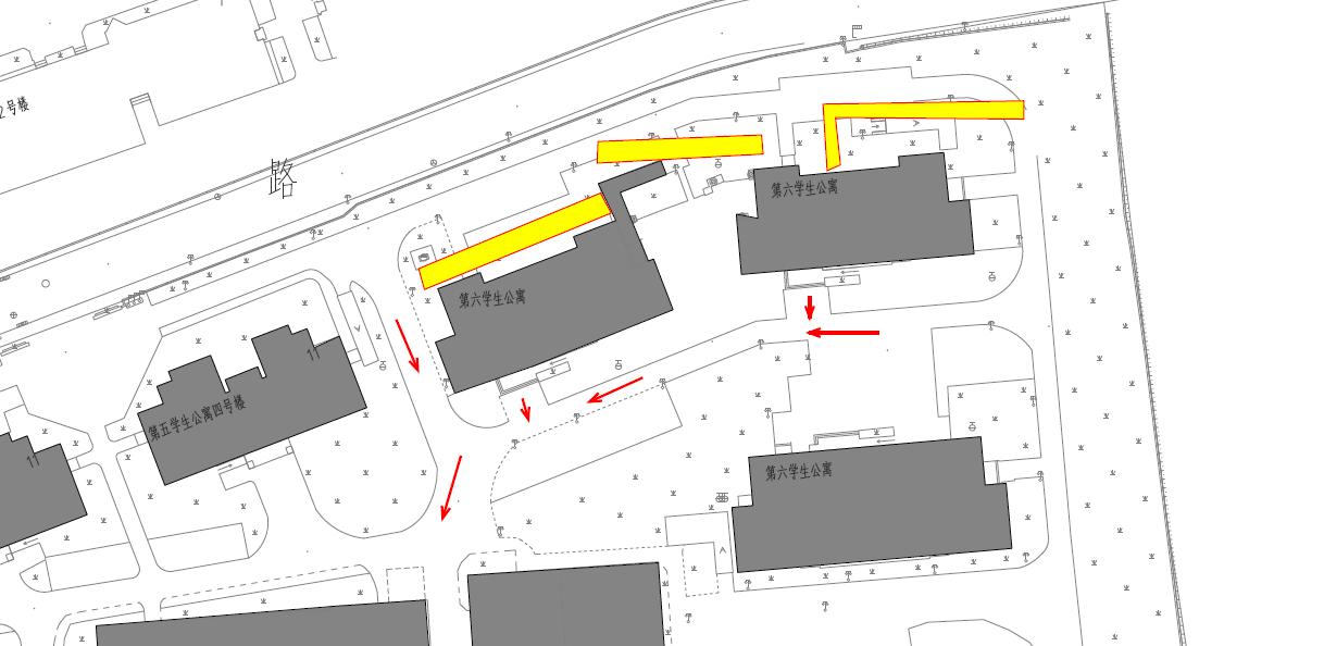
期末和寒假期间是校园基础设施改造升级的关键阶段,为确保各项目顺利推进,近期将对334号部分建筑周边绿化区域进行雨污改造施工,具体范围详见附图。本次施工时间为2026年1月14日至2026年2月10日。
因施工期间对周边道路会造成一定的影响,行人、非机动车应注意观察、缓慢通过。项目建设期间带来的不便,我们深表歉意,恳请大家谅解。也请在校师生务必远离施工区域,注意通行安全,提前规划出行路线。
此次改造将显著改善校园排水与环境品质,长远惠及大家的学习与生活。感谢大家的理解与支持,让我们共同期待更美好的校园。
特此通知,请互相转告。
基建处
保卫处
2026年1月13日
334号校区雨污分流改造工程封闭区域及交通路线图(第四教学楼南侧和理科实验楼南北侧)

334号校区雨污分流改造工程封闭区域及交通路线图(第六学生公寓楼北侧)

供稿单位:








